QUY HOẠCH PHÂN KHU CHỨC NĂNG SỐ 6 THỦ THIÊM

"Khu Chức Năng Hỗn Hợp Thuộc Đô Thị Sala"

  • Khu chức năng số 6 là một khu vực định hướng Đông – Tây nằm dọc theo Đại lộ Đông Tây và giữa các kênh rạch tự nhiên của bán đảo  Thủ Thiêm.
  • Tại đây dự kiến bố trí Công viên Phần mềm ở phía Bắc tuyến Đại lộ Đông Tây.
  • Đây sẽ là đầu mối của các hoạt động kinh tế và  nghiên cứu, là điểm thu hút nguồn nhân lực và diễn ra các hoạt động chính của Khu chức năng.
  • Kế cận là bệnh viện quốc tế, vị trí này  giúp cho việc tiếp cận bệnh viện được nhanh chóng và dễ dàng từ phía đại lộ Đông Tây hoặc từ các khu vực trong và ngoài Thủ Thiêm.  
  • Tại phía Nam đại lộ Đông Tây là Khu chức năng bao gồm các khối thương mại hỗn hợp nằm dọc theo tuyến hành lang chính, phía sau  là các khu ở yên tĩnh và mật độ thấp hơn.
  • Toàn khu vực được bố trí các tuyến giao thông công cộng như xe buýt hoặc tuyến xe tuần  hoàn và tuyến tàu điện ngầm dẫn vào khu nhà ga nằm ở Bệnh viện và Công viên Phần mềm.

Khu Cn Số 6: Phân Bố Sử Dụng Đất

quy hoạch khu chức năng số 6 sala thủ thiêm - phân bố sử dụng đất new

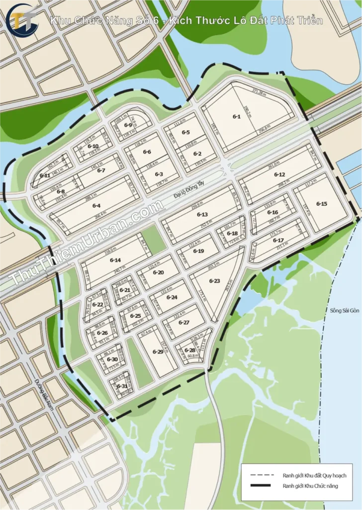
Khu CN Số 6: Kích Thước Lô Đất Phát Triển

quy hoạch khu chức năng số 6 sala thủ thiêm - kích thước lô đất phát triển new

Khu CN Số 6: Mặt Bằng Minh Họa

quy hoạch khu chức năng số 6 sala thủ thiêm - mặt bằng minh họa new

Khu CN Số 6: Hình Ảnh Khối Phố

quy hoạch khu chức năng số 6 sala thủ thiêm - hình ảnh khối phố new

Các Diện Tích Phát Triển & FAR Tại Khu Chức Năng Số 6 Thủ Thiêm

Tổng Hợp Các Chỉ Tiêu Quy Hoạch Phát Triển Tại Khu Chức Năng Số 6 Thủ Thiêm:

  • Diện tích Lô phố:  350.460 m2 (35 ha)
  • GFA: 1.170.044 m2
  • Tỉ lệ % sàn nhà ở: 23%
  • GFA hữu dụng sàn nhà ở: 214.309 m2.
  • Tỉ lệ % sàn thương mại: 70%
  • GFA hữu dụng sàn thương mại: 652.526 m2
  • Hệ số sử dụng đất thuần (net FAR): 3,34
  • Số căn hộ để ở: 1.174 căn
  • Số chỗ đậu xe khu cư dân: 1.762 oto 
  • Số chỗ đậu xe khu thương mại: 6.953 oto 
  • GFA đậu xe: 217.862 m2
  • GFA tầng ngầm: 366.282 m2
  • Dân số cư trú: 9.395 người
  • Số người làm việc: 54.817 người
  • Tổng Diện tích Lô phố: Tổng diện tích đất được đầu tư xây dựng mới sau khi đã trừ đất công cộng và giao thông, tính bằng  m2 và ha.

  • GFA: Tổng diện tích sàn của các công trình xây dựng trong khu chức năng, tính bằng m2.

  • Hệ số Sử dụng đất thuần (Net FAR), FAR: Hệ số sử dụng đất, là tỉ lệ giữa tổng diện tích sàn (GFA) và tổng diện tích đất xây  dựng, được tính bằng m2.

  • Số căn hộ: Tổng số lượng các căn hộ trong Khu chức năng được xác định trên diện tích dự kiến cho từng căn hộ, theo tiêu  chuẩn quốc tế và Việt Nam.

  • Số chỗ đậu xe Khu Dân cư: Số chỗ đậu xe cần thiết cho khu ở được tính theo nhu cầu đậu xe dự kiến, theo tiêu chuẩn quốc  tế và quy chuẩn Việt Nam.

  • Số chỗ đậu xe khu Thương mại: Số chỗ đậu xe cần thiết cho khu thương mại được tính trên nhu cầu đậu xe dự kiến, theo  tiêu chuẩn quốc tế và quy chuẩn Việt Nam.

  • Tổng diện tích sàn đậu xe: Tổng diện tích các bãi đậu xe đảm bảo đáp ứng nhu cầu đậu xe của Khu chức năng, tính bằng  m2.

  • Tổng diện tích sàn tầng ngầm: Tổng diện tích sàn xây dựng ngầm tính bằng m2.

  • Dân số cư trú: Quy mô dân số thường trú được tính toán theo số lượng người/hộ nhân với số lượng căn hộ. Số người/hộ  được dự báo theo tiêu chuẩn quốc tế và mô hình ở của người Việt tại Thủ Thiêm.

  • Số người làm việc: Quy mô số người làm việc được tính trên tiêu chuẩn m2 sàn làm việc cho 1 người lao động. Diện tích  chuẩn này là 12m2/người lao động dựa theo tiêu chuẩn quốc tế và các dạng không gian văn phòng dự kiến tại Thủ Thiêm.
quy hoạch khu chức năng số 6 sala thủ thiêm - kế hoạch phát triển new

Bảng “Kế hoạch Phát triển” trên biểu thị chỉ tiêu cho từng lô trong Khu chức năng, xem từ trái qua phải, với các thuật ngữ  sau:

 

  • Diện tích từng lô phố được tính bằng m2 và ha.
  • Tổng diện tích sàn của các ô được tính dựa trên hình chiếu bằng công trình và chiều cao quy định trong bản vẽ Quy hoạch  Tổng mặt bằng.
  • Hệ số sử dụng đất riêng cho từng lô phố được tính bằng tỷ lệ giữa tổng diện tích sàn và diện tích đất từng lô phố.
  • Đánh giá tỷ lệ hữu dụng từng lô phố dựa trên tiêu chuẩn quốc tế, áp dụng theo từng khu chức năng cụ thể.
  • Tổng diện tích sàn sử dụng, được tính bằng m2, căn cứ theo tỷ lệ hữu dụng từng lô nhân với tổng diện tích sàn.
  • Diện tích căn hộ (cho các khu ở) được xác định theo % của khu ở/tổng diện tích sàn khu ở và % của khu thương mại/tổng  diện tích sàn khu thương mại của lô phố đó.
  • Số căn hộ được tính bằng cách chia tổng diện tích sàn căn hộ cho diện tích căn hộ.
  • Số lượng chỗ đậu xe khu ở được tính theo số lượng căn hộ, đã được xác định chỉ tiêu đậu xe.
  • Số lượng chỗ đậu xe thương mại được tính theo số m2 của khu thương mại, đã được xác định chỉ tiêu đậu xe.
  • Hệ số đậu xe (được tính bằng m2, là diện tích 1 chỗ đậu xe). Hệ số này được nhân với số lượng chỗ đậu xe để tính tổng  diện tích sàn bãi đậu xe, được tính bằng m2.
  • Số tầng ngầm đậu xe được xác định dựa trên kích thước lô phố.
  • Tổng diện tích sàn xây dựng ngầm là diện tích thực tế của bãi đậu xe ngầm có thể xây dựng trên một ô phố cụ thể. Số này  dựa trên diện tích thật của từng ô phố, khác với tổng diện tích bãi đậu xe ngầm được tính bằng cách nhân số chỗ với diện  tích 1 chỗ đậu xe.
  • Số người trên một căn hộ là số lượng người dự kiến cho một loại căn hộ cụ thể, dựa theo tiêu chuẩn quốc tế và quy định  của Việt Nam.
  • Dân số được tính bằng cách nhân số người trong từng căn hộ với số căn hộ.
  • Số người làm việc trên 1m2 thể hiện sự ước tính tổng số người làm việc dựa theo tiêu chuẩn quốc tế và tiêu chuẩn dự kiến  cho khu Thủ Thiêm trong tương lai.
  • Số người làm việc được xác định bằng cách nhân số người làm việc/m2 với tổng diện tích thương mại dịch vụ.
  • Khách vãng lai Thuê căn hộ và Người sử dụng Căn hộ Dịch vụ là những ước tính cho dân số sống trong các căn hộ dịch vụ  tại Thủ Thiêm. Lượng dân này có thể xem như cư dân thường trú.

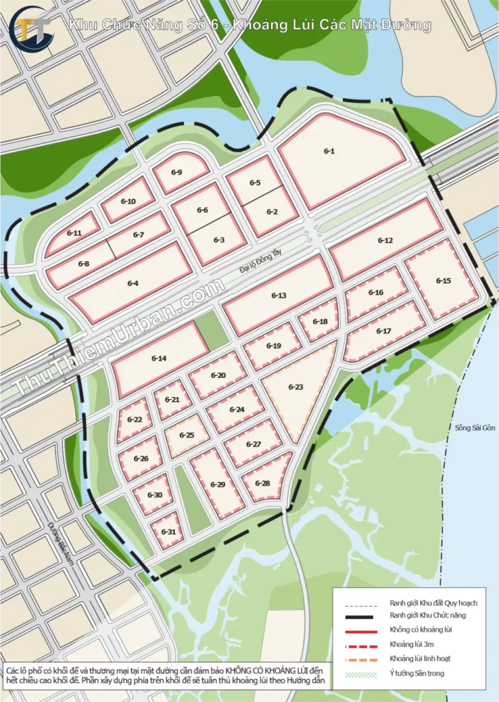
Khu CN Số 6: Khoảng Lùi Các Mặt Đường

quy hoạch khu chức năng số 6 sala thủ thiêm - khoảng lùi các mặt đường new

Khu CN Số 6: Bán Lẻ Tầng Trệt

quy hoạch khu chức năng số 6 sala thủ thiêm - mặt bằng bán lẻ tầng trệt new

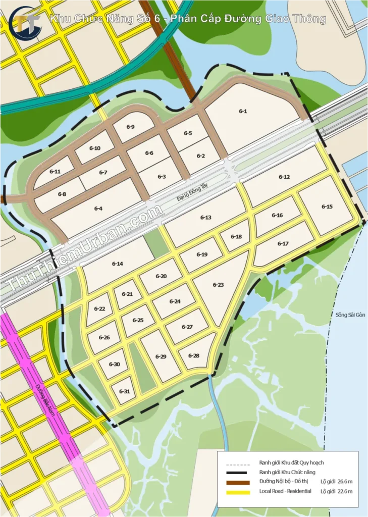
Khu CN Số 6: Phân Cấp Đường Giao Thông

quy hoạch khu chức năng số 6 sala thủ thiêm - phân cấp đường giao thông new

Khu CN Số 6: Kết Nối Giao Thông

quy hoạch khu chức năng số 6 sala thủ thiêm - kết nối giao thông new

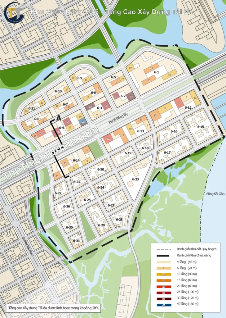
Khu CN Số 6: Tầng Cao Xây Dựng Tối Đa

quy hoạch khu chức năng số 6 sala thủ thiêm - tầng cao xây dựng tối đa new

Khu CN Số 6: Mặt Cắt Chiều Cao Xây Dựng

quy hoạch khu chức năng số 6 sala thủ thiêm - mặt cắt chiều cao xây dựng new

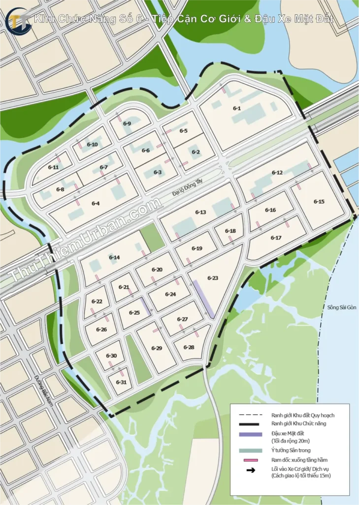
Khu CN Số 6: Tiếp Cận Cơ Giới & Đậu Xe Mặt Đất

năng số 6 sala thủ thiêm - tiếp cận cơ giới & đậu xe mặt đất new

Khu CN Số 6: Đậu Xe Tầng Ngầm

quy hoạch khu chức năng số 6 sala thủ thiêm -đậu xe tầng ngầm new

DỊCH VỤ TEAM THỔ ĐỊA THỦ THIÊM CUNG CẤP

MUA BÁN

Môi giới bất động sản chuyển nhượng

Phân phối F1 dự án mở bán mới

Cập nhật thông tin dự án sắp mở bán

CHO THUÊ

Giỏ hàng cho thuê đa dạng giá tốt

Cập nhật liên tục với nhiều sản phẩm độc quyền

Cam kết đồng hành trong suốt hợp đồng

NHẬN KÝ GỬI

Listing nhanh chóng & chuyên nghiệp

Đội ngũ chuyên nghiệp – nhiệt huyết – tận tâm

Cam kết đồng hành “Trước – Trong – Sau” giao dịch

ĐĂNG KÝ TƯ VẤN


    avatar-ocean-hai-do-new-moi
    Ocean Hải Đỗ

    * Chuyên Tư Vấn BĐS Thủ Thiêm

    * Tel: 0944.899.339 (Zalo/WhatsApp)

    * Email: thuthiem.urban@gmail.com

    TEAM THỔ ĐỊA THỦ THIÊM

    “Team Thổ Địa Thủ Thiêm” là tập hợp những nhà môi giới có sự am hiểu sâu sắc và nhiều năm kinh nghiệm làm tại thị trường có tính chất rất đặc thù Thủ Thiêm. Các thành viên trong team phải am hiểu sâu sắc về quy hoạch, những giá trị bền vững vượt thời gian, sự khác biệt và giá trị của những sản phẩm bất động sản ở phân khúc cao cấp, hạng sang & siêu sang tại Thủ Thiêm. 

    Dịch Vụ Team Thổ Địa Thủ Thiêm Cung Cấp:

    • Phân phối các dự án BĐS sơ cấp trực tiếp từ chủ đầu tư.
    • Chuyển nhượng và cho thuê lại các SP BĐS thứ cấp.
    • Tư vấn và cung cấp thông tin về Thủ Thiêm.

    Khác Biệt Khi Giao Dịch Qua Team Chúng Tôi :

    • Thông tin chuyên sâu, cập nhật liên tục, nhanh nhất & chính xác nhất.
    • Giỏ hàng phong phú nhất với nhiều căn độc quyền giá tốt.
    • Cam kết đồng hành xuyên suốt “trước – trong – sau” giao dịch.
    favicon thủ thiêm
    • Hotline: 0944.899.339 (Ocean Hải Đỗ).
    • Email: thuthiem.urban@gmail.com
    • Website: ThuThiemUrban.com
    • VPKD: VE-S03 New City Thủ Thiêm, 17 Mai Chí Thọ.
    • ĐC: Khu đô thị mới Thủ Thiêm: P. An Khánh), TP.HCM

    (Note: Thông tin chúng tôi cập nhật trên website này được sưu tập từ nhiều nguồn uy tín với mục đích tham khảo, chúng tôi sẽ không chịu bất kỳ trách nhiệm nào khi được sử dụng với mục đích pháp lý.)

    error: Content is protected !!